Hirsitalo Kuura 70
Lisää suosikkeihin
Kerrokset
1
Kerrosala
70 m2
Makuuhuoneet
2
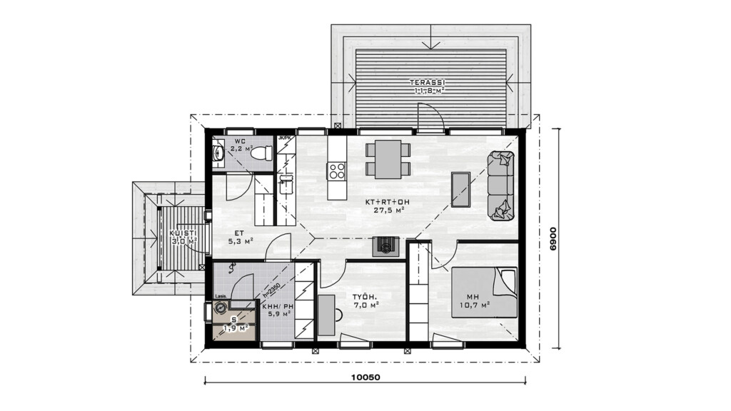
Kuura 70 tarjoaa lisää tilaa arkeen selkeällä ja toimivalla pohjaratkaisulla. Avoin oleskelutila yhdistyy keittiöön, ja erillinen työ- / vierashuone tuo mahdollisuuden rauhalliseen työskentelyyn. Kodinhoito- ja pesutilat sekä sauna tekevät kokonaisuudesta käytännöllisen ja mukavan. Kuura 70 sopii hyvin myös vapaa-ajan asunnoksi.
Malli on saatavissa myös pulpettikattoisena.
Pohjaratkaisu
Tilat on jaettu selkeästi arjen toimintoihin: oleskelu, työ ja pesutilat muodostavat toimivan kokonaisuuden.
Kiinnostuitko?
Lisää suosikkeihin
Poista suosikeista
Katso myös
Edellinen
Seuraava
Lisää suosikkeihin
Uusi
Lisää suosikkeihin
kerrosala:
166
m2 ,
1
kerros,
5 mh
Lisää suosikkeihin
Lisää suosikkeihin
kerrosala:
151
m2 ,
1
kerros,
4 mh
Lisää suosikkeihin
Lisää suosikkeihin
kerrosala:
99
m2 ,
1
kerros,
2 mh
Lisää suosikkeihin
Lisää suosikkeihin
kerrosala:
155
m2 ,
1
kerros,
4 mh
Lisää suosikkeihin
Lisää suosikkeihin
kerrosala:
90
m2 ,
1
kerros,
2 mh
Lisää suosikkeihin
Uusi
Lisää suosikkeihin
kerrosala:
104
m2 ,
1
kerros,
2 mh
Lisää suosikkeihin
Lisää suosikkeihin
kerrosala:
142
m2 ,
1,5
kerrosta,
4 mh
Lisää suosikkeihin
Lisää suosikkeihin
kerrosala:
141
m2 ,
1
kerros,
2 mh
Lisää suosikkeihin
Uusi
Lisää suosikkeihin
kerrosala:
151
m2 ,
2
kerrosta,
3 mh