Skip navigation
Harjakattoinen pieni hirsitalo. Takapihalla on pieni katos terassin päällä.

Hirsitalo Kolo 50

Kerrokset 1
Kerrosala 49.9 m2
Makuuhuoneet 1

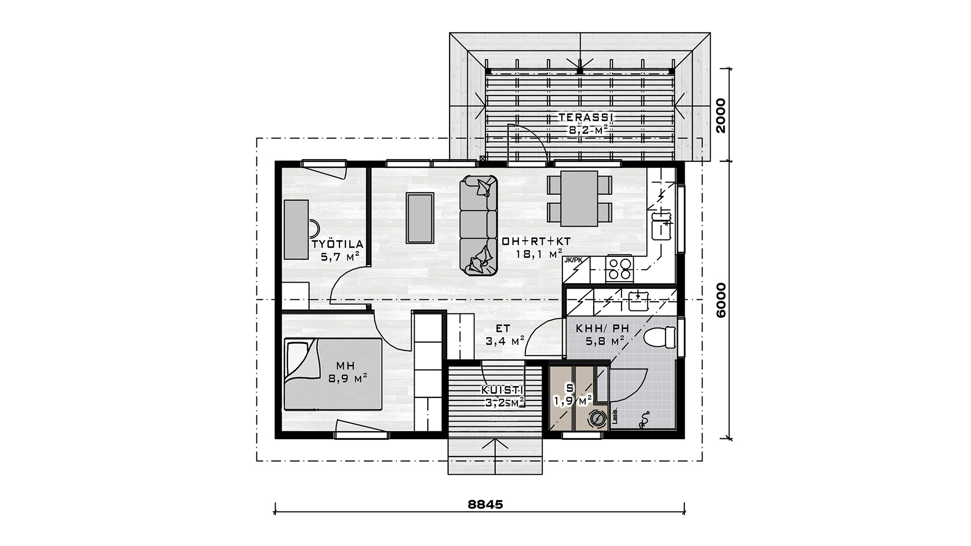
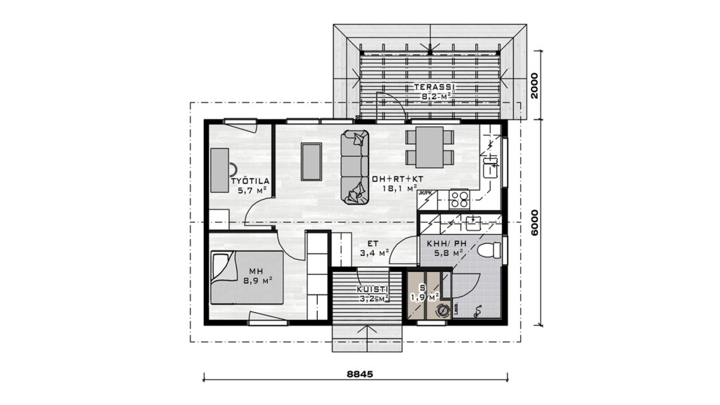
Hirsitalo Kolo 50 on kompakti talomalli, jossa tilankäyttö ja asumismukavuus ovat tasapainossa. Avoin oleskelutila ja keittiö muodostavat kodin sydämen, ja erillinen makuuhuone sekä työskentelytila tuovat arkeen joustavuutta. Oman saunan lämpö tuo rentouttavan päätöksen päivään. Kolo 50 on toimiva ratkaisu niin vapaa-aikaan kuin pysyvään asumiseen.

Malli on saatavissa myös pulpettikattoisena.

Pohjaratkaisu

Saunan lisääminen kompaktiin pohjaan tekee kokonaisuudesta monipuolisen. Tilat on järjestetty niin, että arki toimii sujuvasti ilman turhia neliöitä.

Galleria

Kiinnostuitko?

Katso myös

Hirsitalo Harjula 168

kerrosala: 168 m2, 1,5 kerrosta, 5 mh

Hirsitalo Kotila 194

kerrosala: 194 m2, 2 kerrosta, 4 mh

Hirsitalo Toranki 176

kerrosala: 176 m2, 1 kerros, 4 mh

Hirsitalo Piilola 136

kerrosala: 136 m2, 1,5 kerrosta, 2 mh

Hirsitalo Saapunki 137

kerrosala: 137 m2, 1,5 kerrosta, 2 mh

Hirsitalo Nuuna M 138
Uusi

kerrosala: 138 m2, 1 kerros, 3 mh

Hirsitalo Pihka 124 - Lähellä*
Uusi

kerrosala: 124 m2, 2 kerrosta, 3 mh

Hirsitalo Merikarhu 162T

kerrosala: 162 m2, 1 kerros, 2 mh

Hirsitalo Louhela 147

kerrosala: 147 m2, 2 kerrosta, 4 mh