Skip navigation

Hirsitalo Kaste 73

Kerrokset 1
Kerrosala 73 m2
Makuuhuoneet 2

Kaste 73 on toimiva ja tasapainoinen talomalli, jossa tilaa riittää monenlaisiin tarpeisiin. Kaksi makuuhuonetta ja erillinen vaatehuone tuovat käytännöllisyyttä arkeen, ja avara oleskelutila kokoaa perheen yhteen. Kodinhoito-, pesu- ja saunatilat on suunniteltu sujuvaa arkea varten. Kaste 73 sopii hyvin pienelle perheelle tai tilaa arvostavalle pariskunnalle.

Malli on saatavissa myös pulpettikattoisena.

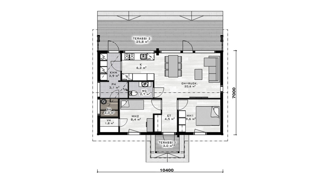
Pohjaratkaisu

Kahden makuuhuoneen ratkaisu ja erillinen vaatehuone sekä kodinhoitohuone tekevät arjesta sujuvaa.

Galleria

Kiinnostuitko?

Katso myös

Hirsitalo Nouka 173

kerrosala: 173 m2, 1 kerros, 4 mh

Hirsitalo Pehkola 138

kerrosala: 138 m2, 1 kerros, 3 mh

Hirsitalo Harjula 168

kerrosala: 168 m2, 1,5 kerrosta, 5 mh

Hirsitalo Nuuna 232TR

kerrosala: 232 m2, 2 kerrosta, 2 mh

Hirsitalo Ahtola 90

kerrosala: 90 m2, 2 mh

Hirsitalo Sysi 132 - Lähellä*
Uusi

kerrosala: 132 m2, 2 kerrosta, 4 mh

Hirsitalo Sulka 150 - Lähellä*

kerrosala: 150 m2, 1 kerros, 3 mh

Hirsitalo Kaiku 50
Uusi

kerrosala: 49.9 m2, 1 kerros, 1 mh

Paritalo Mustola 238

kerrosala: 238 m2, 1 kerros, 4 mh