Skip navigation

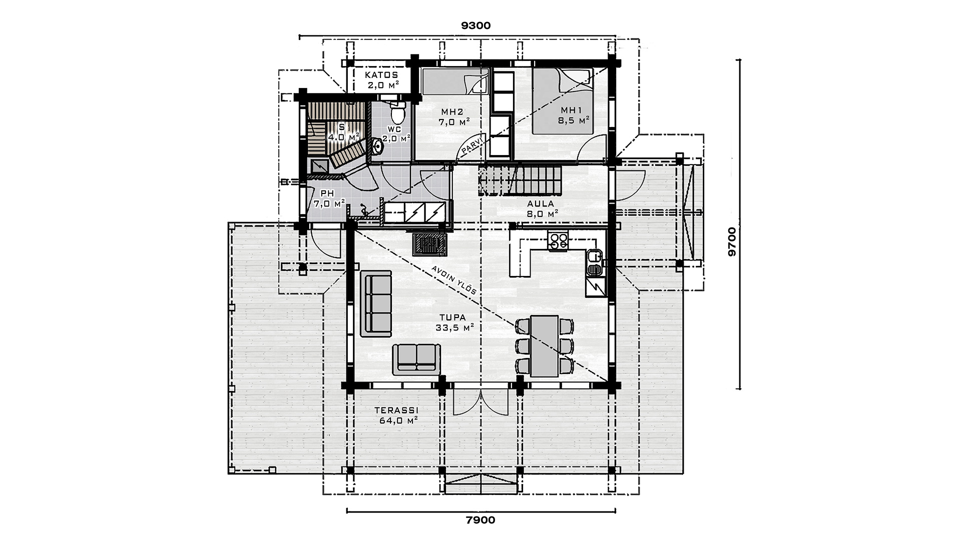
Holiday Home Onkamo 87P

Floors 1,5
Floor area 87 m2
Bedrooms 2

Onkamo is a log villa where smart planning and comfort come together in a well-balanced design. The high and airy living area with kitchen forms the heart of the home and is filled with natural light from generous windows. The loft and spacious terraces make the model ideal for leisure living and longer stays.

Can be made using both CUTsystem and LOGsystem.

Floor plan

Gallery

Are you interested?

See also

Log cabin Hukkanen 37s

floor area: 37 m2, 1 floor, 1 bedroom

Holiday Home Kitka 54P
New

floor area: 54 m2, 1,5 floors, 3 bedroom

Holiday Home Virkkula 79

floor area: 79 m2, 1 floor, 2 bedroom

Holiday home Soidinniemi 100P

floor area: 100 m2, 2 floors, 2 bedroom

Log cabin Peippi 37

floor area: 37 m2, 1 floor, 1 bedroom

Log cabin Askola 33

floor area: 33 m2, 1 floor, 1 bedroom

Log cabin Hukkanen 43P

floor area: 43 m2, 1,5 floors, 1 bedroom

Holiday Home Tuuma 91
New

floor area: 89 m2, 1 floor, 3 bedroom

Holiday home Suvanto 142s

floor area: 142 m2, 1,5 floors, 2 bedroom