Tervetuloa tutustumaan upeaan hirsitaloon Ouluun! Kaksikerroksinen hirsikotiunelma avaa ovensa Kuusamo Kotipäivien yhteydessä.
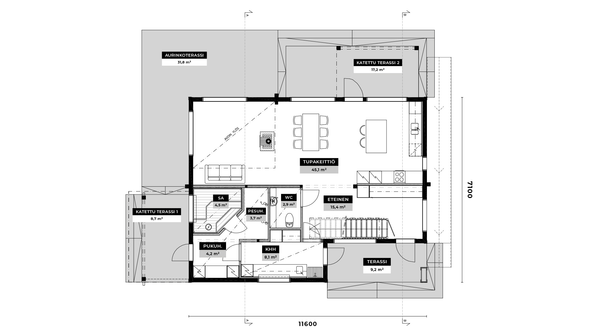
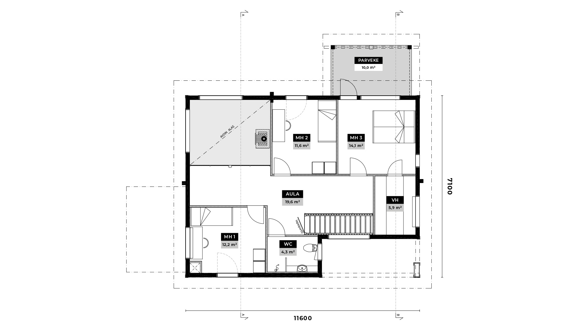
Kuusamo Kotipäivien kohde Oulussa on 173-neliöinen kaksikerroksinen omakotitalo. Talomalli on yksi suosituimmista malleistamme Hiisi 173. Hirsikoti Hiisi on tunnettu syvennetystä, suojaisasta sisäänkäynnistä sekä korkeasta ylös asti avautuvasta olohuoneesta, missä isot ikkunat ovat sijoitettuna olohuoneen kulman molemmin puolin.
Varaa oma esittelyaikasi ja ilmoittaudu hirsitalonäyttelyyn alla olevalla lomakkeella torstaihin 5.2. klo 16 mennessä. Toimi nopeasti – paikkoja on rajoitetusti ja ne varataan ilmoittautumisjärjestyksessä. Lähetämme talonäyttelyn osoitteen ilmoittautuneille sähköpostitse perjantain 6.2. aikana.



Kohdetta on esittelemässä Oulun alueen Kuusamo-myyjä Lassi Honkanen. Häneltä saat parhaat vinkit onnistuneeseen hirsiprojektiin!
Ilmoittaudu näyttelyyn
Ilmoittautuminen on päättynyt. Voit kysyä mahdollisia peruutuspaikkoja Lassilta.
Lassi Honkanen
Kuusamo-myyjä
Pohjois-Pohjanmaa
lassi.honkanen@kuusamohirsitalot.fi 040 551 7135Voimatie 1, 90440 Kempele