Tervetuloa tutustumaan moderniin, kaksikerroksiseen hirsikotiin Mynämäessä lauantaina 7.2.2026 klo 12-15. Ilmoittaudu näyttelyyn pian!
Sunnuntaina 8.2. järjestetään myös talonäyttely Kaarinassa – katso kohde.
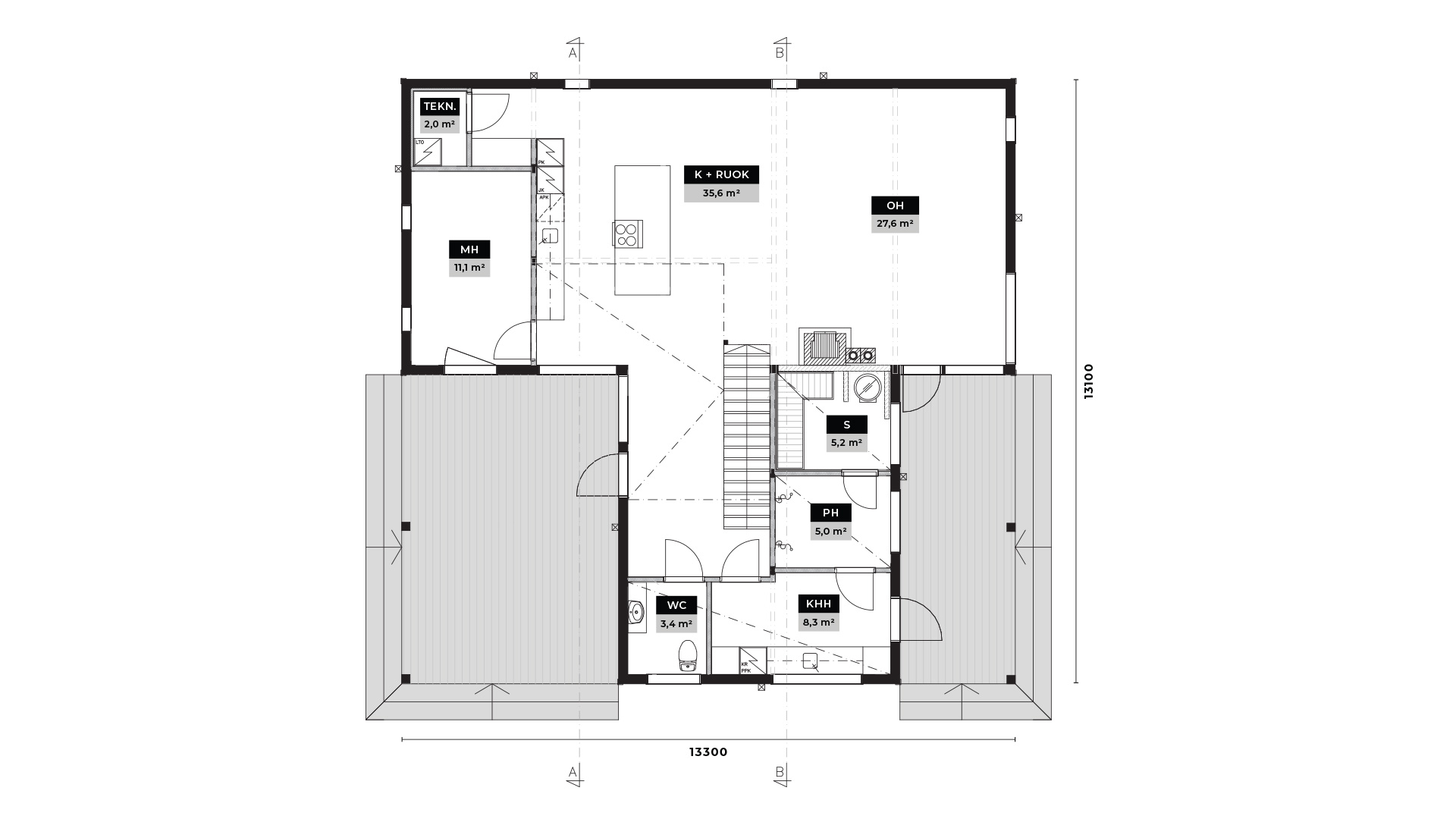
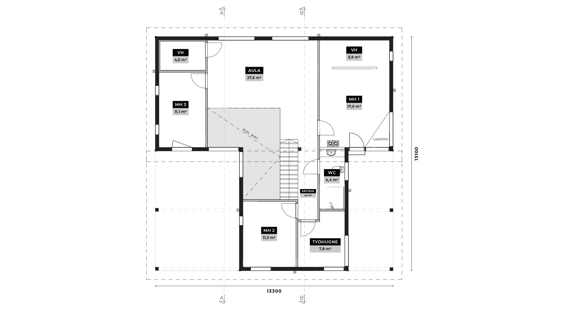
Kuusamo Kotipäivien kohde Mynämäessä on moderni, kaksikerroksinen hirsikoti. Neljä makuuhuonetta sisältävän hirsikodin katseen vangitsijoina toimivat kaksi kerrosta korkeat kulmaikkunat niin olohuoneen kulmassa, kuin sisäänkäynnin vieressä. Talon päämakuuhuoneen kulmasta löytyy myös persoonallinen yksityiskohta, pieni palanen lasilattiaa, josta voi nähdä alas olohuoneeseen.
Ilmoittaudu näyttelyyn alla olevalla lomakkeella torstaihin 5.2. klo 16 mennessä. Näyttelyn tarkempi osoite lähetetään ilmoittautuneille sähköpostitse perjantain 6.2. aikana.




Hirsitaloa on esittelemässä Kuusamo-myyjä Jari Hiltunen, joka antaa sinulle parhaat vinkit oman hirsiprojektisi eteenpäin viemiseksi. Hän esittelee samana viikonloppuna myös toista hirsikotia Kaarinassa. Tule tutustumaan myös Kaarinan upeaan kotiin – ilmoittaudu mukaan täältä.
Ilmoittaudu
Ilmoittautuminen on päättynyt, kysy mahdollisia peruutuspaikkoja suoraan Jarilta.
Jari Hiltunen
Kuusamo-myyjä
Varsinais-Suomi
jari.hiltunen@kuusamohirsitalot.fi 044 244 0033Rauhankatu 6, 20100 Turku