Tervetuloa tutustumaan moderniin Nuuna-hirsitaloon Mikkelissä lauantaina 7.2.2026 klo 12-15. Ilmoittaudu mukaan saman tien!
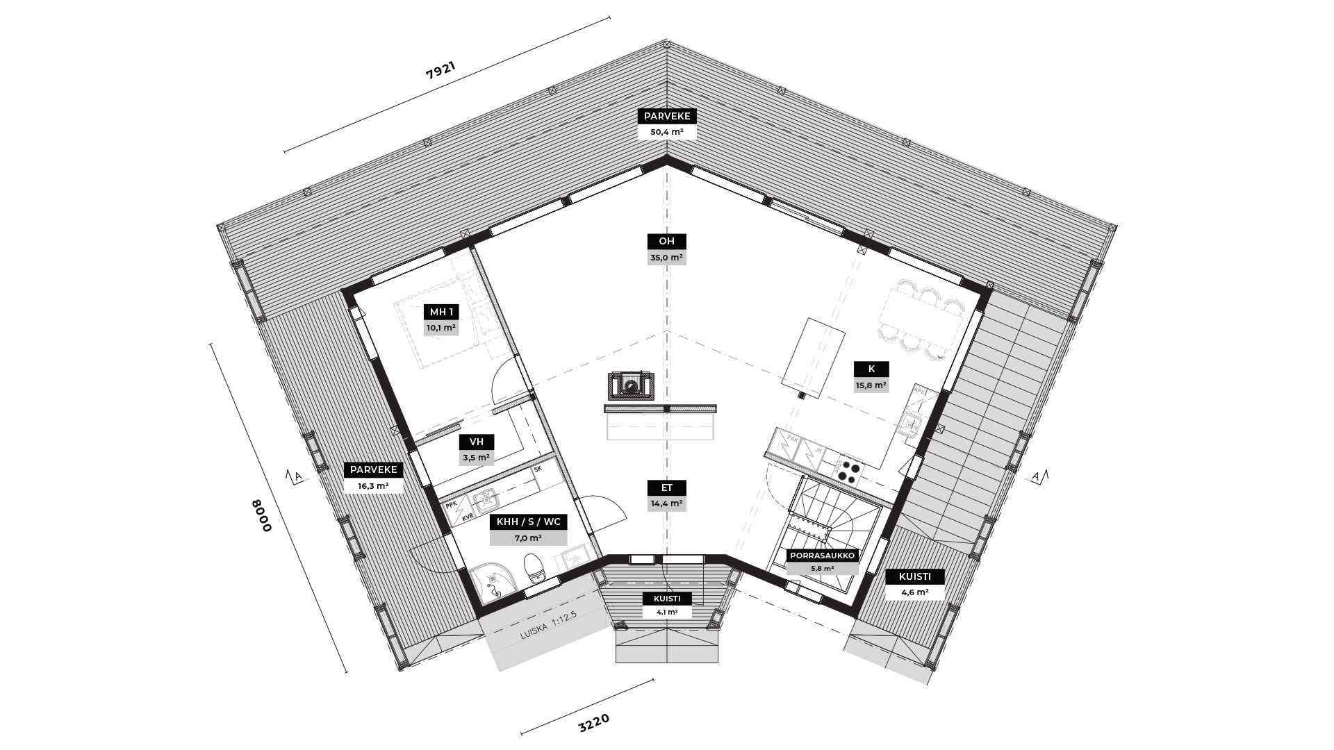
Kuusamo Kotipäivien talonäyttelykohde Mikkelissä on rinteeseen rakennettu, Nuuna M 190 -muunnos. 151-neliöisessä, modernisoidussa klassikkomallissamme on tuttuun tapaan avarat ja valoisat oleskelutilat, sekä mahdollisuus muuttaa huoneiden järjestystä siipien kesken. Perinteisestä Nuunasta poiketen modernisoidun mallin sivuille on tuotu suojaksi pilarit, jotka kannattelevat Nuunan moniulotteista kattoa.
Kohde on talonäyttelyn aikaan vielä viimeistelyvaiheessa, joten kaikki pinnat eivät ole vielä täysin valmiit.
Ilmoittaudu näyttelyyn alla olevalla lomakkeella torstaihin 5.2. klo 16 mennessä. Näyttelyn tarkempi osoite lähetetään ilmoittautuneille sähköpostitse perjantain 6.2. aikana.



Kohdetta on esittelemässä Kuusamo-myyjä Seppo Pelkonen. Häneltä saat parhaat vinkit koko hirsiprojektisi ajalle. Paikalla on myös tulisija-asiantuntija Jari Parkkinen Tiileriltä. Tule juttelemaan ja hakemaan inspiraatiota omaan projektiisi.
Ilmoittaudu
Ilmoittautuminen on päättynyt, voit kysyä peruutuspaikkoja Sepolta.
Seppo Pelkonen
Kuusamo-myyjä
Etelä-Savo & Keski-Suomi
seppo.pelkonen@kuusamohirsitalot.fi 0400 555 202Vuorikatu 8 B, 50100 Mikkeli
Puistokatu 27, 40100 Jyväskylä