Tule tutustumaan upeaan hirsikotiin ja -saunaan Kirkkonummelle lauantaina 7.2.2026 klo 12-15. Ilmoittaudu talonäyttelyyn nyt!
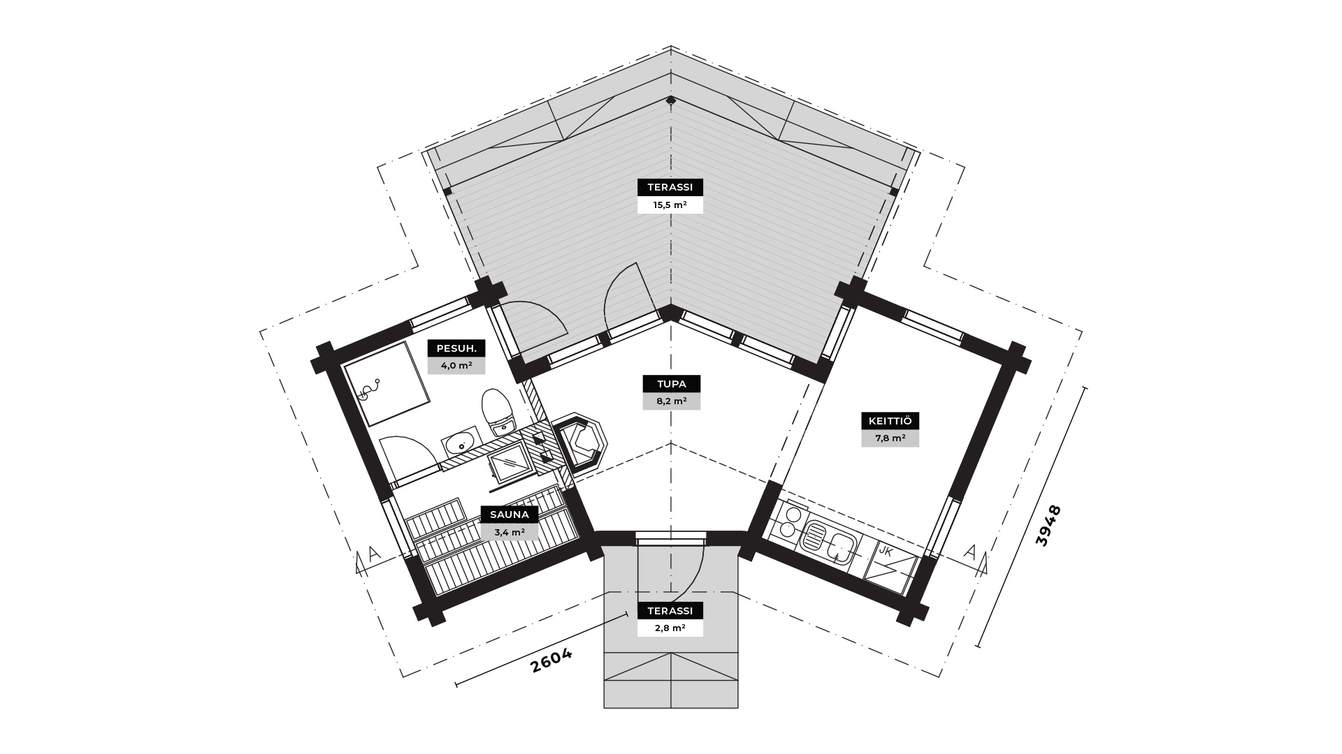
Kuusamo Kotipäivien esittelykohteet Kirkkonummella ovat juuri valmistuneet 154-neliöinen Nuuna-hirsikoti, sekä Sieppo 28:n 30-neliöinen muunnos. Molemmat rakennukset ovat pohjaratkaisultaan viuhkamaisia ja molempien keskiössä on korkea ja avara oleskelutila. Tontille on rakennettu myös hirsinen autotalli.
Talo on rakennettu hirsivalikoimamme paksuimmasta LHM 275 hirrestä, saunarakennus LHM 202 hirrestä ja autotalli on toteutettu LHM 135 hirrellä.
Ilmoittaudu näyttelyyn alla olevalla lomakkeella torstaihin 5.2. klo 16 mennessä. Näyttelyn tarkempi osoite lähetetään ilmoittautuneille sähköpostitse perjantain 6.2. aikana.


Kohdetta esittelee Kuusamo-myyjä Nikolaus Määttä, jonka kanssa voit keskustella esimerkiksi omasta hirsiprojektistasi tai asumishaaveistasi. Paikalla on myös Suomen Sisustustakka Oy:n Jaakko Raanimo esittelemässä varaavaa takkaa. Tule juttelemaan ja hakemaan inspiraatiota omaan projektiisi.
Ilmoittautuminen
Ilmoittautuminen on päättynyt, voit kysyä mahdollisia peruutuspaikkoja suoraan Nikolaukselta.
Nikolaus Määttä
Kuusamo-myyjä
Uusimaa
nikolaus.maatta@kuusamohirsitalot.fi 040 912 5725Gate 8, Äyritie 8 A, 01510 Vantaa