Tervetuloa tutustumaan rakenteilla olevaan hirsihuvilaan Asikkalaan 7.2.2026 klo 12-15. Ilmoittaudu näyttelyyn nyt!
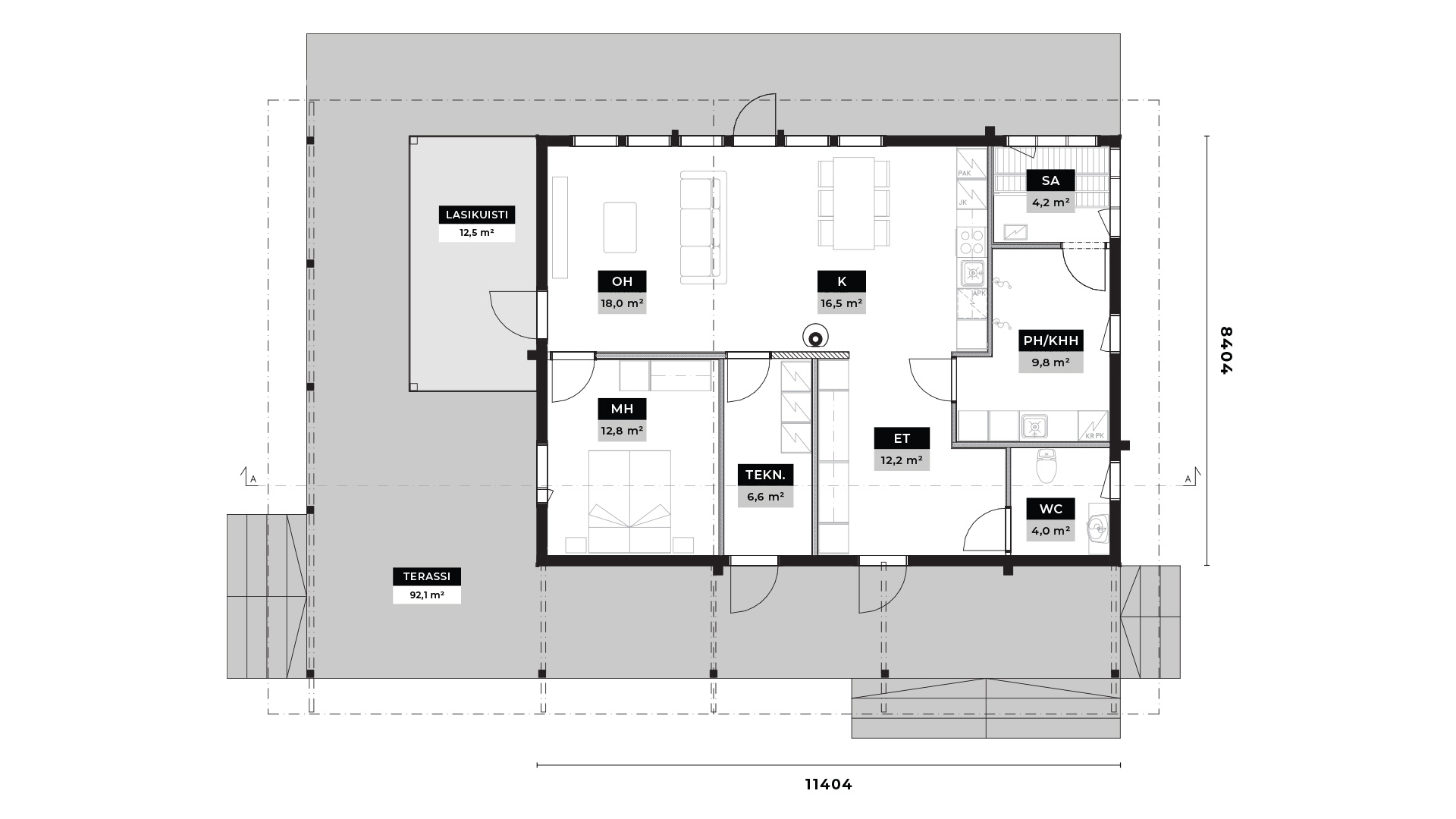
Kuusamo Kotipäivät saapuvat myös Asikkalaan! Asikkalassa esittelemme rakennusprosessin alkuvaiheessa olevan 95-neliöisen hirsihuvilan, joka on toteutettu asiakkaan omien luonnosten pohjalta. Hirsihuvila on näyttelyhetkellä arvion mukaan säältä suojassa, huomioithan sään mukaisen pukeutumisen näyttelyyn saapuessasi. Kohde on toteutettu moderniin tyyliin jiirinurkalla sekä painumattomalla hirrellä.
Ilmoittaudu näyttelyyn alla olevalla lomakkeella torstaihin 5.2. klo 16 mennessä. Näyttelyn tarkempi osoite lähetetään ilmoittautuneille sähköpostitse perjantain 6.2. aikana.

Hirsihuvilaa on esittelemässä Kuusamo-myyjä Pasi Hirviniemi, jolta saat tarvittaessa apua oman hirsiprojektisi edistämisessä.
Ilmoittaudu näyttelyyn
Ilmoittautuminen on päättynyt. Kysy mahdollisia peruutuspaikkoja suoraan Pasilta.
Pasi Hirviniemi
Kuusamo-myyjä
Kanta-Häme & Päijät-Häme
pasi.hirviniemi@kuusamohirsitalot.fi 0500 723 234